.
Menu
LK022927
Eladó
Társasház
457 000 000 Ft
1062 Budapest 6. kerület , Kodály Köröndön luxus teraszos lakások!
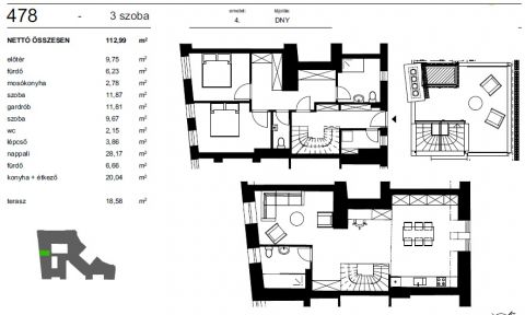
3 szoba
113 m²
Tégla
Törlesztőrészlet Ft/hó
THM %
10 megtekintés az elmúlt 7 napban
Leírás
Luxus otthonok az Andrássy út legelegánsabb palotájában. Azonnal birtokba vehetők!

Háromemeletes, négy belső udvaros eklektikus bérház az Andrássy út, a Felső erdősor utca, a Szív utca és a Kodály Körönd sarkán.

Az eredeti épület 1883-ban készült el, melynek tervezője Kauser József.

A meglévő műemléki épületen teljes rekonstrukció és tetőtér beépítés készül.

15 db duplex, ill. tetőteraszos luxus lakás, melyekből már csak pár elérhető.

A LAKÁSBELSŐK MEGÁLMODÓJA, VARRÓ ZOLTÁN, GOLD KEY AWARD DÍJAS TERVEZŐ.

Exkluzív recepcióval és új liftekkel, felújított belső homlokzatokkal.

Az épületen megújult a külső belső homlokzat, a közös közlekedők burkolatai, a belső udvarok, az épület körüli járda és a kerítés.

A Reneszánsz Udvar, a Pálmakert és az Angolkert látványa egyedülálló, a tetőteraszokról pedig lélegzetelállító a kilátás Budapestre!

VIDEÓ MEGTEKINTHETŐ ITT: https://www.youtube.com/watch?v=HVIpXB1Ijs0 

Mutass többet
Általános adatok
Ingatlan állapota:
6 - Új. ép.
Építés éve:
2024
Emelet:
4
Emeletek száma:
4
Lift:
Hívó
Épület külső állapota:
5 - Nagyon jó
Épület belső állapota:
5 - Nagyon jó
Fényviszonyok:
Napfényes
Parkolás:
Nincs
Erkély/Terasz:
Van
Nézet:
Panoráma
Tájolás:
D
Fűtés:
Fan-coil
Energetikai besorolás:
Nincs megadva
Lakáshitel kalkulátor – Spórolj velünk!
Kalkulálj most, és keresd pénzügyi szakértőinket, akik ingyenes tanácsadással segítenek megtalálni a számodra legjobb megoldást!

Hasonló ingatlanok

1063 Budapest 6. kerület

LK495242 | 3 szoba | 99 m²
130 000 000 Ft

1064 Budapest 6. kerület

LK068992 | 3 szoba | 118 m²
260 000 000 Ft

1065 Budapest 6. kerület

LK081038 | 3 szoba | 98 m²
149 000 000 Ft

1066 Budapest 6. kerület Nagykörúton belül ÚJ ÉP. TERASZOS LAKÁSOK

PR029302/LK/16075 | 4 szoba | 97 m²
170 000 000 Ft

1066 Budapest 6. kerület Nagykörúton belül ÚJ ÉP. TERASZOS LAKÁSOK

PR029302/LK/16095 | 2 szoba | 74 m²
90 000 000 Ft

1065 Budapest 6. kerület

LK015120 | 3 szoba | 122 m²
179 000 000 Ft

1062 Budapest 6. kerület ANDRÁSSY ÚTON PATINÁNS HÁZBAN MODERN HANGULATÚ LAKÁS ELADÓ

LK081702 | 1 szoba | 100 m²
175 000 000 Ft

1062 Budapest 6. kerület

LK030223 | 3 szoba | 105 m²
160 000 000 Ft

1066 Budapest 6. kerület Körúton belül újépítésú, nappali + 2,5 szobás, duplex, lakás télikerttel eladó 29.

LK078472 | 4 szoba | 93 m²
210 000 000 Ft

1066 Budapest 6. kerület Körúton belül újépítésú, nappali + 1 hálós, teraszos lakás eladó 36.

LK013197 | 2 szoba | 58 m²
90 000 000 Ft

1062 Budapest 6. kerület

LK049718 | 12 szoba | 294 m²
349 000 000 Ft

1068 Budapest 6. kerület 'Airbnb' engedéllyel rendelkező, felújított, 3szobás a Király utában, a Liszt Ferenc térnél

LK098566 | 3 szoba | 72 m²
103 500 000 Ft

1067 Budapest 6. kerület Szobi utca

LK036435 | 2 szoba | 46 m²
49 500 000 Ft

1062 Budapest 6. kerület

LK057005 | 3 szoba | 84 m²
249 000 000 Ft

1061 Budapest 6. kerület Andrássy út elején eladó lakás plusz egy iroda egyben, akár visszabérléssel

LK099537 | 1 szoba | 113 m²
269 000 000 Ft

1063 Budapest 6. kerület

LK066445 | 3 szoba | 93 m²
114 900 000 Ft

1068 Budapest 6. kerület

H423305 | 4 szoba | 75 m²
109 900 000 Ft

1062 Budapest 6. kerület Kodály Köröndön , panorámás, luxus teraszos lakások!

LK038201 | 3 szoba | 112 m²
420 000 000 Ft

1062 Budapest 6. kerület Kodály Körönd luxus teraszos lakások!

LK097206 | 3 szoba | 109 m²
410 000 000 Ft

1067 Budapest 6. kerület Hunyadi téren felújított, berendezett garzonlakás

LK057346 | 1 szoba | 25 m²
44 900 000 Ft
Tresz Péter
Örökös tag értékesítő
Kapcsolatfelvétel
Hívom
Kapcsolatfelvétel
Kérjen egy személyes megtekintést az ingatlanra a Duna House értékesítőjétől
Válassz egy időpontot